3 weeks. 21 days. Maybe less. Will the wait finally be over? While we are glad the construction didn’t start in the middle of our busiest season for business, we are very much ready to have our own place to live. Renting a house, having to move out, move in, move out then eventually move into our casita is a royal PIA and unforeseen based on our original time-line but, as they say, patience is a virtue…
So, at this point, the wood order has been paid for and is, according to Trevor, half-way complete. We opted for teak glu-lam beams in all places the eye will see… and stuck with melina for the structural parts. The wood order costs about the same as the SIP order, which may or may not be significant information… time will reveal the method and we are excited to have the Home Diary #3 show the step by step.
The wood order is coming from way down south. Trevor says he has found in his wood guy down there, someone dedicated to quality, and from what we have observed, quality is his #1 goal. A deposit of 60% was required to confirm the wood order… somewhat nerve wracking when we have now paid for the panels (a year ago) and the wood … just can’t wait for the construction to start…
A couple weeks ago Trevor and Michael visited our site and staked out the area. Turns out that in the plans, the elevation wasn’t considered, and the front of our casita is going to be 6 ft off the ground… we want to have it completely elevated off the ground so as to disturb the natural flow of the land the least amount possible (and avoid retaining walls etc)… hence the front will be quite commanding…
Let’s see… back in September when we got the good news that our permits were ready, we paid for the INS policy for Riesgo de Trabajadores (compulsory insurance for the workers)… so it ran out on the 30th January. I called on the 29th to INS and was told in order to make an extension, I would have to take the Bitacora (bit-tack-ora) signed by the architect (now the signing architect is Oscar Villavicencio, who lives in the city). So I thought, great, the Bitacora is a letter or document that we can scan and print off… but no, a Bitacora is a book, that the architect issues and keeps I guess as some kind of journal on the construction… so, not having a hope in the world of getting such a thing in a day, I called INS again (the 4th time…. lesson here- call multiple times to different agents and eventually you will get an answer that you want!!). The wonderful agent there named Grita, said she would make a note in my policy to say that the construction hasn’t started and that it is suspended for now. Phew, no 2 hour round trip to Santa Cruz in the middle of a busy work week. Oscar was very responsive and ready to help, he wrote a letter which I read to Gritta and this is what was the final straw that meant that unnecessary journey was avoided… thanks Oscar!!
So many of my friends have been asking- “so, when is the construction going to start?” to which I reflexly roll my eyes and say “who knows!!” but having said that, I will say that on the positive side of things, I am very grateful that the crew are learning with each house they do and by #3 I am confident that things will go smoothly with many lessons already learned. It is one thing to be very good at what you do… ie. Trevor and Michael have years and years of experience in construction/ project management… but in a country where the pace is typically much slower, and things just don’t happen the way or speed you plan… it is a tough balance and quite a journey.
I did ask Trevor if there was anything we can do in preparation of their arrival to get a head-start… so we are working on getting the electric meter he uses (A GE brand) up here, installed so they have electricity right off the bat.
Hopefully my next post will be an ecstatic one that ground has been broken 🙂
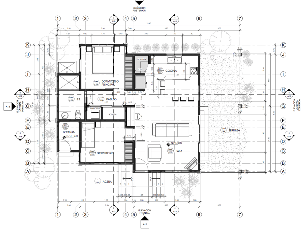
Below is our floorplan… we are excited. It is a small house but we sure have had plenty of time to plan and make sure it is perfect. With the help of the incredible Andrina Fonseca, Interior Designer and Architect, whom we were grateful to be able to contract on an hourly consultation basis, a few simple changes/ improvements were added. Andrina suggested that the sliders out from the master bedroom open out onto a deck area which houses an open air bath-tub, not reflected in the plans but we are excited about that little detail of luxury!
A12 – PLANTA CASITA copy with decking detail


Leave a comment